Bếp không chỉ là không gian nấu ăn đơn thuần, đây còn là nơi các thành viên trong gia đình dành thời gian bên nhau. Nó thậm chí có thể là sự kết hợp của không gian ăn uống và khu vực nấu ăn, làm cho nó trở thành một phần quan trọng trong ngôi nhà.
Đó là lý do vì sao mỗi chúng ta đều luôn muốn nhà bếp của mình trông hấp dẫn và ấm cúng hơn, nơi mà cả gia đình và khách sẽ cảm thấy như ở nhà.
Các bước lập kế hoạch sửa nhà bếp
1. Đánh giá nhà bếp hiện tại
Khi lên kế hoạch sửa nhà bếp, trước hết phải hiểu chính xác cách bạn sử dụng căn bếp hiện tại và sau đó thiết kế nó cho phù hợp. Hãy suy nghĩ về thói quen hàng ngày và vquy trình làm việc khi đang nấu ăn hoặc thực hiện các công việc khác trong nhà bếp. Điều gì đang hoạt động tốt? Vấn đề gì cần khắc phục hay cải tiến? Trả lời những câu hỏi này sẽ giúp hoàn thành các bước tiếp theo của quy trình lập kế hoạch sửa nhà bếp.

2. “Tam giác làm việc”
Theo truyền thống, các nhà thiết kế đã tập trung vào “tam giác làm việc hiệu quả trong nhà bếp – chậu rửa, bếp và khu vực lưu trữ. Ý tưởng này có thể được sửa đổi cho phù hợp với nhu cầu cá nhân người nội trợ. Tuy nhiên, nếu đang thiết kế một nhà bếp lớn hơn và phức tạp hơn, hãy thử thay đôi căn bếp thành những khu vực công việc cụ thể và xem tam giác làm việc có hiệu quả nữa không.
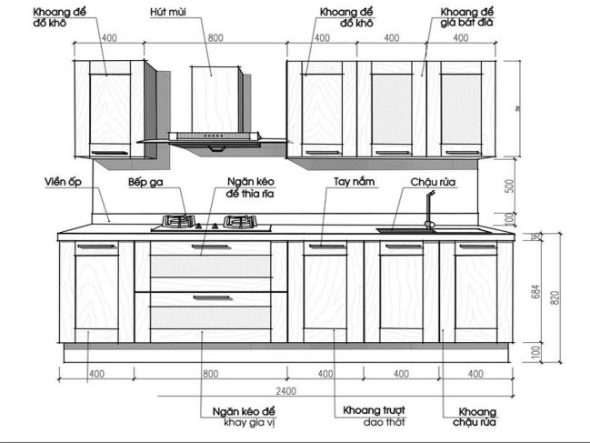
3. Tạo kế hoạch cụ thể
Một khi đã có ý tưởng tốt về cách bố trí cho nhà bếp, hãy cụ thể hơn (tạo phác thảo, hoặc tốt hơn là sử dụng thiết kế). Lưu ý các vị trí chính xác trong không gian như cửa sổ, cửa hay kiến trúc khác, các tiện ích như điện, nước, thoát nước, hệ thống hút khói, thông khí … Xác định kích thước chính xác của các thiết bị mới như tủ lạnh, máy rửa chén, lò vi sóng, lò nướng …

4. Lấy ý kiến chuyên môn (nếu cần)
Nếu thiếu kinh nghiệm trong các dự án tu sửa, cải tạo lại nhà cửa, có thể bạn sẽ mất thời gian và tiền bạc để có được sự trợ giúp từ một chuyên gia, ngay cả khi tự hoàn thành phần lớn công việc. Ý kiến của các chuyên gia, người có kinh nghiệm sẽ giúp kế hoạch thực hiện thành công, nếu không sẽ phát sinh ra vấn đề nghiêm trọng khi tiến hành cải tạo!
5. Thực hiện các lựa chọn
Đây là phần thú vị! Quyết định kiểu dáng, chất liệu tủ bếp, cửa ra vào, cửa sổ, phụ kiện cần thiết và những thứ khác! Lựa chọn về màu sắc và thiết kế, cân nhắc các lựa chọn lưu trữ đặc biệt như thêm ngăn kéo và các tủ chuyên dụng để chứa gia vị, dao thớt, đĩa hoặc rượu vang.

6. Mua nguyên vật liệu
Khi đã hoàn thành kế hoạch, đã đến lúc mua nguyên vật liệu phục vụ cho công việc! Nếu ngăn kéo, các phụ kiện tủ bếp như bản lề, ray trượt, giá dao thớt, gia vị … hay bất kỳ phụ kiện và thiết bị nhà bếp nào khác, hãy lựa chọn các sản phẩm chất lượng của NewEra và các dịch vụ giá cả phải chăng do Tân Kỷ Nguyên cung cấp.
 
		 
					
						
 
									
								 
	